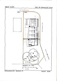
Haus S. in Münchendorf

Bebauungsstudien

Neuerrichtung Einfamilienhaus

 

Bild 15 u. 16/16

 

 

 

<<<

>>>